商城首页
商城入驻
委托采购
商城导购热线
资金安全  银联担保 质量保障  放心可靠

上(下)展式气动放料阀

收藏 产品价格: ¥230.00 不含税
手机
浏览
物流:
发货承诺:协商发货时间
到付:不支持货到付款
品牌:川沪
商品详情
材质: 连接形式:
类型(通道位置): 驱动方式:
流动方向: 用途: 进口阀门
适用介质: 压力环境:
介质温度(℃): 工作压差:
产品别名: 适用范围:
 

一、上(下)展式气动放料阀 产品概述

上海川沪阀门有限公司生产的上(下)展式气动放料阀FL641F/H是用气动执行器控制阀门,性能与用途:操作方便,开启自由,运动灵活可靠;阀瓣装配维修简单,密封结构合理,密封圈更换方便实用。 结构:主要由阀体,阀瓣,密封圈,阀杆,支架,阀压盖,手轮,法兰,螺母,定位螺钉等零件。 
1、气动放料阀适用介质如水、丙酮、酒精、氨、碳酸钡、苯(WCB材质的最低用温度为-29℃,最高温度为425℃。)
2、使用介质如颗粒、油品、纸浆、二氧化碳、气(不锈钢材质的最低使用温度为-100℃,最高使用温度为232℃。)
3、严禁使用含氟离子液体(如HF等)也不能用强碱及磷酸(温度>150℃浓度>30%)。

上(下)展式气动放料阀
上(下)展式气动放料阀

二、上(下)展式气动放料阀 零件参数

零件名称 ZG1Cr18 Ni9Ti系列 ZG00Cr18 Ni10系列 ZG1Cr18 Ni12MO 2 Ti系列 ZG00Cr17Ni14MO 2 系列 WCB系列
阀体/阀盖 ZG1Cr18 Ni9Ti ZG00Cr18 Ni10 ZG1Cr18 Ni12MO 2 Ti ZG00Cr17Ni14MO 2 WCB
阀杆 ZG1Cr18 Ni9Ti ZG00Cr18 Ni10 ZG1Cr18 Ni12MO 2 Ti ZG00Cr17Ni14MO 2 WCB
阀瓣 ZG1Cr18 Ni9Ti ZG00Cr18 Ni10 ZG1Cr18 Ni12MO 2 Ti ZG00Cr17Ni14MO 2 WCB
垫片 304+PTFE 304L+PTFE 316+PTFE 316L+PTFE 石墨+304
螺柱 1Cr17Ni2 1Cr17Ni2 1Cr17Ni2 1Cr17Ni2 35CrMoA
螺母 1Cr18 Ni9Ti 1Cr18 Ni9Ti 1Cr18 Ni9Ti 1Cr18 Ni9Ti 45

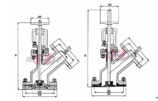
三、上(下)展式气动放料阀 结构图

上(下)展式气动放料阀外形尺寸图
上(下)展式气动放料阀外形尺寸图

四、上(下)展式气动放料阀 连接尺寸

DN 上法兰 上法兰 下法兰 密封座
D1 D2 D3 D4 D5 D6
25 115 80 115 85 / /
32 135 100 135 100 / /
40 145 110 145 110 80 60
50 165 125 160 125 85 70
65 180 145 180 145 130 85
80 195 160 195 160 135 95
100 215 180 215 180 160 130
125 245 210 245 210 160 140
150 280 240 280 240 185 165
200 335 295 335 295 / /

注:表中尺寸为不带标准附件数据。另由于产品改进技术创新参数可能有一定变化,请咨询公司技术部门索取##数据。

企业介绍

上海川沪阀门销售有限公司

  •   [诚信档案]
  • 联系人: 陈震宇  
  • 电话:
  • 手机:
  • 地址: 上海市奉贤区金汇镇金碧路358号
商城服务
如何入驻商城 如何推荐商品
在线交易
买家无忧 卖家无忧 在线交易服务流程
委托求购
委托求购 委托求购流程 委托求购方式
常见问题
如何注册成为会员? 合作及洽谈 联系我们